La Lino - Aménagement Cabinet Kiné Nice 100m² - Design Médical
Aménagement d'un cabinet de kinésithérapie à Nice : transformer 100m² en espace médical moderne et chaleureux
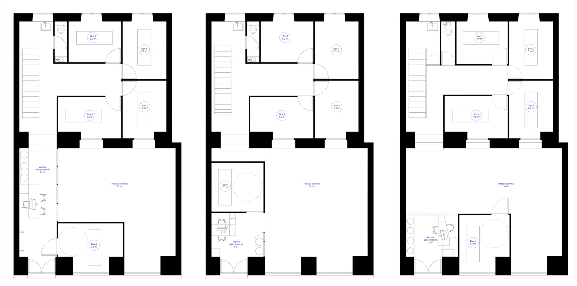
Trois jeunes kinésithérapeutes souhaitaient ouvrir leur cabinet de kinésithérapie et ils ont choisi pour cela un local à rénover en plein centre de Nice – une ancienne imprimerie non sans cachet avec ses carreaux d'époque au sol, des poutres apparentes au plafond et un grand mur en pierre. Le local se compose de deux plateaux d'environ 50m², libres de toute cloison mais séparés par trois marches représentant un franchissement d'environ 50cm.
Les contraintes : normes PMR et accessibilité ERP
En tant qu'ERP de catégorie 5, le local se doit d'être aux normes PMR soit dans son intégralité, soit en partie si toutes les fonctions proposées sont accessibles aux personnes handicapées. Les trois marches rendent le plateau du fond inaccessible en l'état. Il n'est pas possible d'installer une rampe au degré de pente réglementaire sans empiéter sur une grande partie de la surface au sol disponible, et installer un plateau élévateur, au-delà d'être très coûteux, était complexe puisque deux des trois escaliers devaient être condamnés pour pouvoir installer le nombre de box requis.
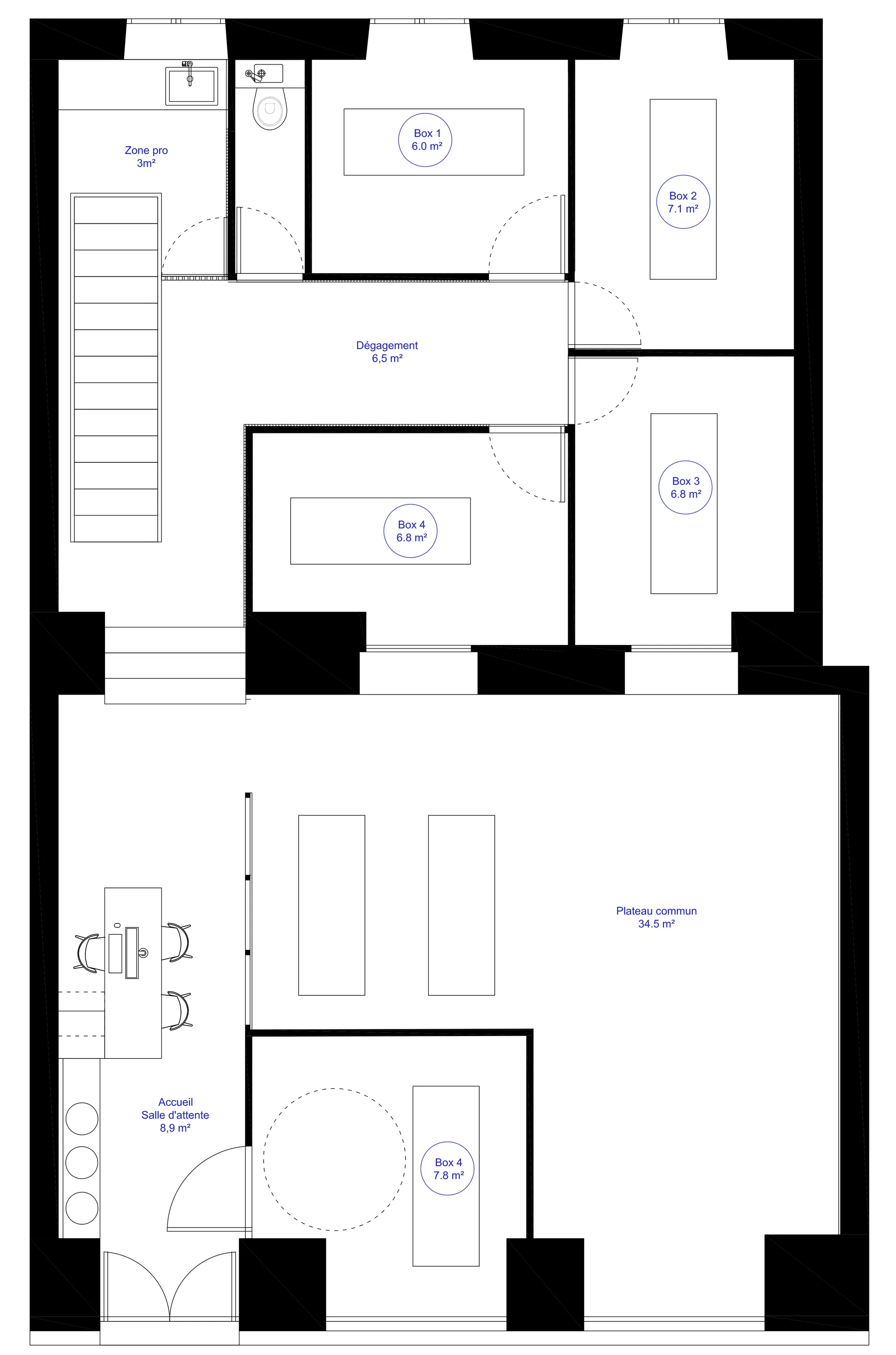
Il a donc été décidé que le plateau du bas comporterait un box accessible PMR, en plus d'un espace d'accueil et du plateau commun permettant aux patients de réaliser leurs exercices. Le plateau du haut ne compte que d'autres box semblables, en plus des espaces privés réservés au personnel – WC, zone stockage et d'eau, accès au sous-sol.
Le concept : des box cabanes
Cinq box de consultation d'au moins 6m² devaient être installés au total. Le local disposant d'une belle hauteur sous plafond, le parti pris fut d'installer des "boîtes dans la boîte", et que ce principe soit lisible. Afin de rendre la chose plus ludique et originale, les box ont été travaillés comme des petites cabanes, aux toits penchés.
Au-delà de l'aspect esthétique, cela permet également d'englober les fenêtres du fond qui touchent presque le plafond, puis de redescendre la hauteur des box pour laisser respirer les volumes. Ces jeux de décrochés permettent également de créer des impostes vitrés redistribuant de la lumière naturelle dans l'espace de circulation qui n'en a plus. Les box ne disposant pas de fenêtres – ceux côté mur en pierre – bénéficient d'un large châssis fixe vitré.
Le choix des matériaux : bois et polycarbonate
Le deuxième parti pris fut de jouer sur l'alliance du bois et du polycarbonate pour rendre l'espace plus moderne et plus chaleureux. Un système de bardage en tasseaux est appliqué sur les murs des box et le garde-corps de l'escalier.
Le principe est décliné pour la paroi séparant l'accueil du plateau commun en une sorte de verrière réinterprétée, qui elle non plus ne va pas jusqu'au plafond. Le polycarbonate, tantôt ondulé pour le rendre quasi-opaque et préserver l'intimité, tantôt lisse pour laisser passer un maximum de lumière, remplace le verre habituel. Dans le plateau inférieur, pour le confort des patients réalisant leurs exercices, un sol en dalles PVC effet béton est posé.


Optimiser les circulations : un enjeu crucial
La réflexion sur les circulations et l'usage était particulièrement importante dans ce projet d'aménagement de cabinet médical. Contrairement aux apparences, le volume est très contraint à cause de la différence de niveau, du mur porteur central en pierre, de la trémie menant au sous-sol et des accès existants.
L'idéal était que les patients puissent avoir un accès direct au plateau des box sans traverser le plateau commun d'exercices, tout en ayant une emprise minimum de l'espace d'accueil pour ne pas trop empiéter sur la surface utile. Cependant, l'espace réellement utilisable est rapidement réduit car aux abords des portes – entrée, box – et des escaliers, on ne peut pas installer un patient pour lui faire faire des exercices.
C'est pourquoi il était finalement vain de vouloir faire un espace d'accueil minuscule. Nous avons plutôt décidé d'implanter la surface "perdue" – circulation, accueil – sur la surface majoritairement inutilisable, en la condensant sur l'axe de gauche.







Le résultat : un cabinet de kiné chaleureux et fonctionnel
Cette rénovation de local professionnel démontre comment il est possible de transformer une ancienne imprimerie en cabinet de kinésithérapie moderne tout en préservant son caractère. Les carreaux d'époque, les poutres apparentes et le mur en pierre apportent du cachet, tandis que les box en forme de cabanes avec leur bardage bois créent une ambiance chaleureuse et rassurante.
Le recours au polycarbonate pour les cloisons et aux tasseaux de bois pour le bardage crée un vocabulaire architectural contemporain qui dialogue avec l'existant. La gestion de la lumière naturelle par les impostes vitrés et les châssis fixes garantit que tous les espaces, y compris les box sans fenêtres, bénéficient d'une luminosité agréable.
Ce projet d'aménagement de cabinet paramédical illustre l'importance d'une réflexion approfondie sur les normes d'accessibilité PMR et les contraintes ERP dès la phase de conception. En proposant un box accessible au rez-de-chaussée avec toutes les fonctions essentielles, le cabinet répond aux exigences réglementaires tout en optimisant l'usage des 100m² disponibles.
Un cabinet de kinésithérapie qui sort de l'ordinaire, où l'architecture intérieure devient un élément de différenciation et contribue au bien-être des patients et des praticiens. Un projet qui prouve qu'un local médical peut allier fonctionnalité, conformité aux normes et vraie qualité architecturale.
Quelques images de l'espace existant




Autres options d'agencements proposées pendant la phase de conception, non retenues
La réflexion sur les circulations et l'usage était particulièrement importante dans ce projet. Contrairement aux apparences, le volume est très contraint à cause de la différence de niveau, du mur porteur central en pierre, de la trémie menant au sous sol et des accès existants. L'idéal était que les patients puissent avoir un accès direct au plateau des boxs, sans traverser le plateau commun, mais tout en ayant une emprise minimum de l'espace d'acceuil pour ne pas trop empiéter sur la surface du plateau. Cependant, l'espace réellement utilisable éest rapidement réduit car aux abords des portes (entrée, box) et des escaliers, on ne peut pas installer un patient pour lui faire faire des exercices. C'est pourquoi il était finalement vain de vouloir faire un espace d'accueil miniscule ; nous avons plutôt décider d'implanter la surface "perdue" (circulation, accueil) sur la surface majoritairement inutilisable, en la condensant sur l'axe de gauche.

