La Loubière - Rénovation complète d'une maison de 90m² - Toulon
Rénovation complète d'une maison de 90m² à La Loubière : faire entrer la lumière et le jardin à l'intérieur en restructurant tout l'aménagement Mission de conception seule
Cette maison de 90m² située dans le charmant quartier de La Loubière à Toulon venait d'être acquise, mais nécessitait une rénovation complète. Les précédents propriétaires, qui n'y étaient restés que deux ans, avaient entamé quelques travaux – changement des menuiseries, installation d'un nouveau système de chauffage – mais presque tout restait à faire dans cette maison aux volumes imbriqués, résultante d'agrandissements successifs sur un terrain en pente.
Le brief de la nouvelle propriétaire était clair : créer au moins deux belles chambres pour elle et son fils, beaucoup de rangements, une cuisine généreuse et fonctionnelle qui soit le cœur de la maison, un espace repas avec une banquette pour le côté convivial, et surtout, faire entrer la lumière et le jardin à l'intérieur de la maison.
Je présente ci-dessous les transformations de cette rénovation, zone par zone, pour mieux comprendre les choix architecturaux et d'aménagement qui ont métamorphosé cette maison.











L'entrée
Après- Avant
L'entrée : créer du rangement et valoriser le volume
Ce grand volume qui donnait sur une deuxième pièce un demi-étage plus bas a été cloisonné pour créer une chambre indépendante en contrebas. Le long de cette nouvelle cloison, un grand linéaire de rangement a été installé pour rendre cette pièce ultra fonctionnelle, en exploitant au mieux sa belle surface.
La niche existante est mise en valeur par des tablettes et un miroir sur mesure collé, tandis qu'un faux-plafond droit a été ajouté pour simplifier le volume tout en faisant passer les gaines techniques. La porte vitrée à double battants a été remplacée par une imposte vitrée fixe – une autre porte-fenêtre donnant déjà accès à la terrasse juste après l'angle. Cette modification permet d'avoir une plus grande surface vitrée et un joli cadrage depuis l'entrée. L'ensemble est peint dans un camaïeu de vert qui rappelle l'extérieur et crée une transition douce entre dedans et dehors.
L'espace salle à manger - salon
Après - Avant
L'espace salle à manger - salon : agrandir les perspectives vers l'extérieur
L'agrandissement de l'ouverture existante du salon est l'un des éléments clés du projet. Il permet de complètement élargir les perspectives vers l'extérieur, d'autant plus qu'un beau citronnier trône juste derrière, dans le jardin. L'espace salon étant assez petit, cette grande ouverture agrandit visuellement la pièce.
Nous avons pensé une ouverture n'allant pas jusqu'au sol, pour y installer une banquette dans l'épaisseur du mur et en débord. Ce cadrage est souligné par un grand bandeau en chêne qui se déploie sur trois des quatre côtés. Enfin, c'est une menuiserie de style verrière qui a été choisie ici, pour apporter du cachet à cet espace et accentuer l'esprit jardin d'hiver. Le placement du mobilier permet désormais une circulation plus fluide dans l'enfilade salle à manger-salon.




L'espace salle à manger - salon
Après - Avant
L'espace salon - salle à manger
Après - Avant
Repenser le cloisonnement : retrouver la largeur de la maison
Vu depuis l'autre extrémité de l'espace de vie, on distingue mieux les grands changements qui ont été effectués en termes de cloisonnement. Le mur du salon a été prolongé en angle pour créer un sas menant aux WC et à la troisième chambre, tandis que l'ancienne salle d'eau a été entièrement déposée pour y installer une cuisine ouverte. Le renfoncement qui accueillait la cuisine a été fermé pour créer la nouvelle salle d'eau.
En son centre, la maison retrouve ainsi toute sa largeur et une lumière traversante. La salle à manger est adossée à la cuisine, utilisant les marches comme une banquette sur l'un des côtés, transformant cette contrainte spatiale en véritable atout convivial.






L'espace salon
Après - Avant
L'espace salon : un coin cheminée contemporain
La propriétaire avait très envie d'un manteau de cheminée à l'ancienne. Nous avons donc dessiné un coffrage toute hauteur ajouré qui permet de dissimuler le split et d'installer des étagères et rangements bas de même profondeur, de part et d'autre. Les rangements bas se prolongent en L vers la banquette, pour créer un meuble TV face au canapé, astucieusement masqué par le bandeau de la fenêtre.
Un très grand miroir circulaire, au-dessus du canapé, reflète généreusement le jardin et la lumière, participant à cette sensation d'espace et de connexion avec l'extérieur.
L'espace cuisine
Après - Avant
La cuisine : un G original et fonctionnel
La cuisine prend place dans l'ancienne salle de bain, entièrement décloisonnée. Un faux plafond a été installé sur toute la zone allant de la retombée de poutre au passage vers l'entrée, afin d'harmoniser les hauteurs disparates et faciliter le passage des réseaux, tout en masquant le plafond de l'ancienne zone salle à manger, brut et en mauvais état.
La cuisine se déploie en G – oui, c'est original ! – pour offrir un maximum de rangement, de fonctionnalité et de convivialité, tout en s'adaptant à la typologie de l'espace existant. Elle devient véritablement le cœur de la maison, comme le souhaitait la propriétaire.


















La salle d'eau
Après - Avant
La salle d'eau : personnalité et fonctionnalité
La salle d'eau prend place dans l'ancienne cuisine, qui était complètement étriquée dans ce petit volume. Un sol à la forte personnalité répond à une mosaïque mate vert d'eau, du béton ciré gris clair et un blanc rosé. La douche est installée tout au fond dans la largeur de la pièce, tandis qu'en face se déroule un linéaire meuble vasque-banquette, intégrant le lave-linge.
Un WC a été ajouté pour que la maison en dispose de deux, améliorant considérablement le confort au quotidien.
La chambre parentale
Après - Avant
La chambre parentale : des dressings symétriques
La pièce a gardé son volume, mais la porte d'entrée a été décalée à l'extrémité du mur pour agrandir au maximum la cuisine qui se déroule derrière. La tête de cloison existante a servi de point de départ au reste de l'agencement : nous l'avons montée en miroir de l'autre côté du mur pour installer deux dressings de part et d'autre de ce qui devient la tête de lit.
Le split qui était dans la cuisine (devenue salle d'eau) a été déplacé dans cette pièce et intégré dans un coffrage ajouré, pour que le tout forme un ensemble harmonieux. Le soubassement ocre apporte de la personnalité et de la chaleur à cette pièce devenue très accueillante.




La chambre d'enfant : une mezzanine sous les pins
Cette pièce en demi-étage, semi-enterrée dans le terrain, était ouverte sur l'entrée. Ainsi refermée, elle devient une chambre d'enfant indépendante, avec une belle surface et un grand volume. L'idée de créer une mezzanine était évidente.
L'escalier a été redessiné en quart tournant pour qu'il ait une double fonction : accéder à la mezzanine et au reste de la chambre en contrebas.
Afin de continuer à lire cette belle hauteur sous plafond malgré l'ajout de la mezzanine, un papier peint panoramique de cimes de pins est posé sur le grand mur du fond. Un filet de catamaran fait office de garde-corps pour sécuriser totalement l'espace sans enfermer la mezzanine.
Le reste de la pièce est volontairement laissé libre, sans agencement fixe, pour permettre à cette chambre d'évoluer au gré de l'âge et des envies de son jeune propriétaire.









La chambre d'amis - dressing - bureau : la pièce évolutive
Tout le monde a besoin d'une pièce bonus dans sa maison, un espace en plus auquel on attribue différentes fonctions selon les besoins du moment, qui peut évoluer aussi au fil des années.
Dans le premier projet validé, la propriétaire avait choisi de créer une belle et grande salle d'eau dans cette pièce, inspirée par son magnifique sol d'origine. Nous avions alors placé un dressing accessible depuis la chambre. Seulement voilà, cela faisait renoncer à une troisième chambre dans une maison de 90m², à la possibilité d'avoir un bureau à part, à recevoir confortablement amis et famille pour quelques jours.
Nous avons donc fait machine arrière et laissé cette pièce telle quelle, en installant simplement un grand dressing secondaire pour les affaires de la maisonnée, un petit coin bureau dans le prolongement et un canapé-lit. La part belle est laissée aux carreaux de ciment d'origine, qui font vraiment le charme de cette pièce.
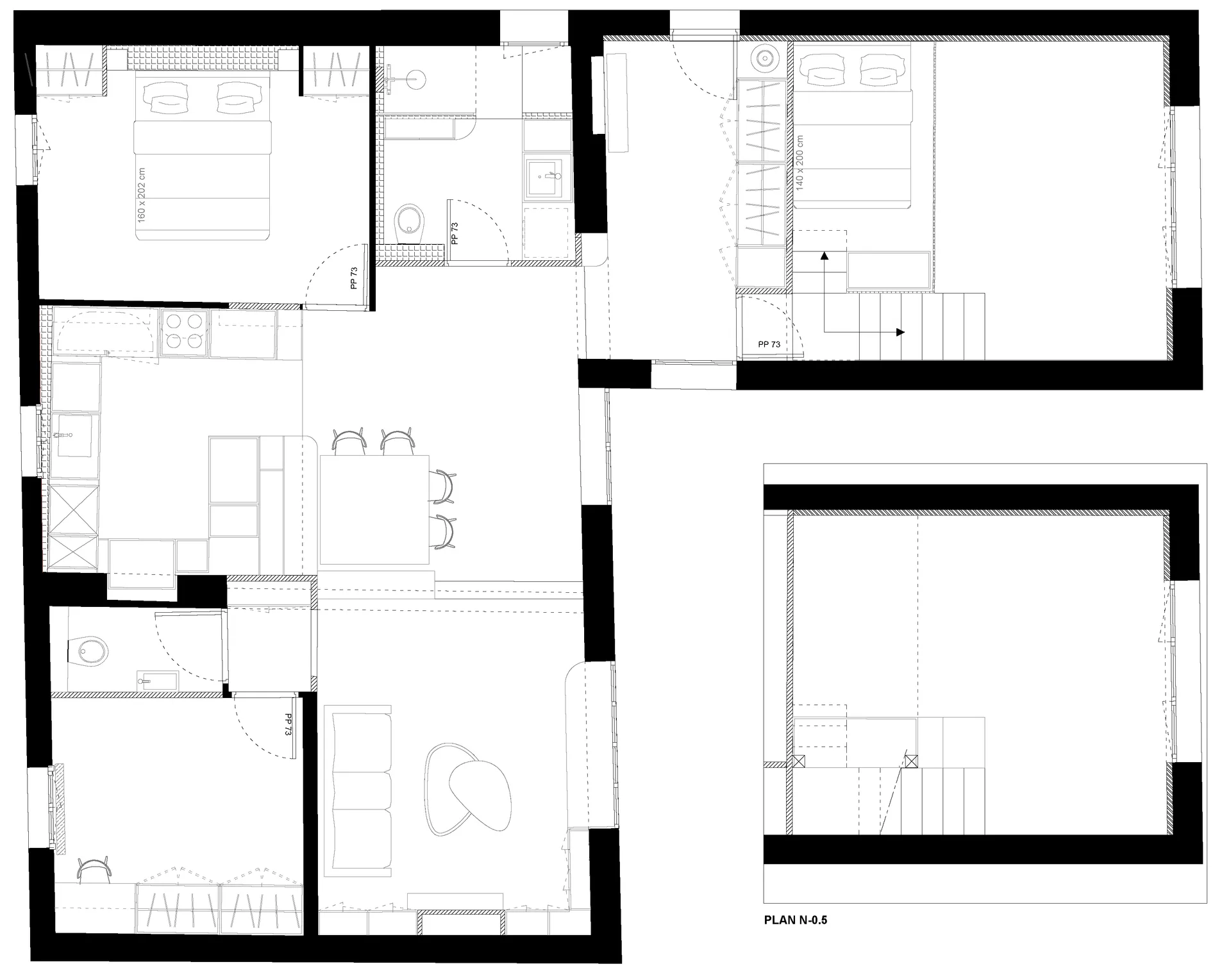
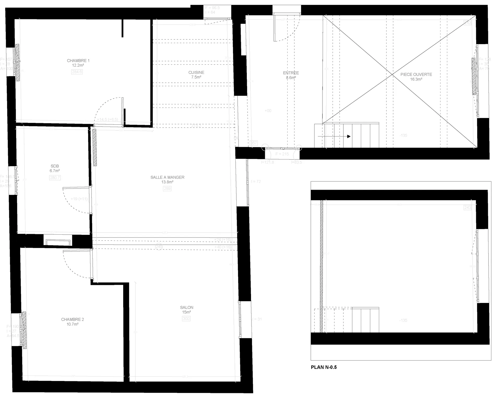
Plan de la maison
Avant > Après


Le résultat : une maison transformée qui dialogue avec son jardin
Cette rénovation de maison à La Loubière démontre comment une réflexion globale sur les cloisonnements, la lumière et les usages peut métamorphoser un bien aux volumes complexes. En déplaçant stratégiquement les fonctions – cuisine, salle d'eau, chambres – et en créant de grandes ouvertures vers le jardin, nous avons transformé une maison sombre et cloisonnée en un lieu de vie lumineux, fonctionnel et accueillant.
Chaque zone a été pensée pour répondre aux besoins spécifiques de la propriétaire et de son fils, tout en conservant une flexibilité pour accompagner les évolutions futures. Le résultat est une maison qui respire, où l'intérieur et l'extérieur dialoguent naturellement, et où chaque mètre carré a été optimisé sans jamais sacrifier le confort ou l'esthétique.