Le Haillan - Rénovation Maison de ville - 120m² - Bordeaux
Rénovation d'une maison de ville : créer des espaces fluides entre vie professionnelle et privée
Lorsque la nouvelle propriétaire de cette maison de ville m'a contacté, le bien était abandonné depuis quelques années. Son projet comportait deux volets : moderniser la façade pour lui donner un aspect plus contemporain, et repenser entièrement l'intérieur pour créer à la fois un espace bureau professionnel et une partie privée, tout en maintenant une grande fluidité entre les différentes zones.
Rénover la façade : une nouvelle identité contemporaine
La première étape du projet a consisté à rénover la façade de cette maison de ville pour la sortir de son aspect vieillissant et lui donner une identité plus actuelle. Cette intervention extérieure était essentielle pour revaloriser le bien et annoncer la transformation qui allait s'opérer à l'intérieur.
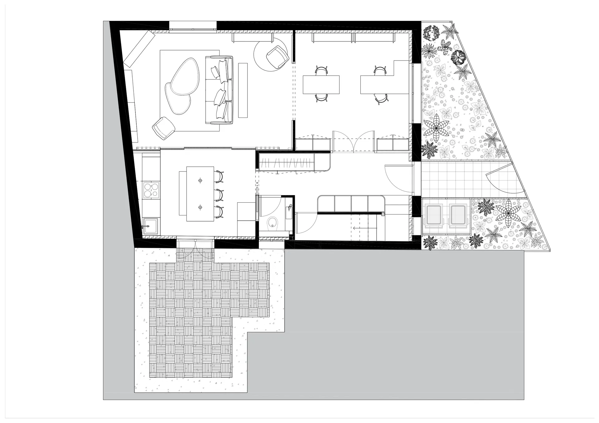
Repenser les espaces : des panneaux coulissants d'inspiration balinaise
À l'intérieur, tout était à rafraîchir, voire à complètement repenser. Le défi résidait dans la création de deux univers distincts – professionnel et privé – qui devaient pouvoir communiquer librement selon les besoins. J'ai fait le choix d'abattre la cloison entre le salon et la cuisine pour ouvrir l'espace, mais en installant de grands panneaux coulissants en bois d'inspiration balinaise
Ces panneaux permettent de moduler l'ouverture ou la fermeture des espaces selon les moments de la journée et les usages, tout en laissant passer la lumière même lorsqu'ils sont fermés. La trame horizontale ou verticale des lames de bois crée un jeu graphique qui structure l'espace et lui donne beaucoup de caractère. Cette solution apporte une dimension architecturale forte tout en préservant la flexibilité d'usage.





Une ambiance aux airs de vacances
Pour le reste de l'aménagement, j'ai opté pour des tons naturels et des matériaux qui offrent un air de vacances au quotidien. Le choix du mobilier renforce cette esthétique et assure une pérennité stylistique au projet. L'ensemble crée un cadre propice à la fois au travail et à la vie quotidienne tout en permettant de s'évader...tout en restant chez soi (qui est aussi un bureau, ici!)
Optimiser les circulations au rez-de-chaussée
Les circulations du rez-de-chaussée ont été fortement repensées. L'entrée, vaste mais inexploitable dans sa configuration initiale, représentait un défi particulier. J'ai créé des rangements sur mesure aux angles arrondis qui structurent cet espace tout en le rendant fonctionnel : un banc à tiroirs qui offre à la fois assise et stockage, et une armoire qui complète les capacités de rangement.
Ces éléments sur mesure permettent d'exploiter intelligemment les volumes disponibles tout en créant un parcours fluide dès l'entrée dans la maison.


Le résultat : une maison de ville réinventée
Cette rénovation de maison de ville a transformé un bien abandonné en un lieu de vie contemporain et fonctionnel, parfaitement adapté à un usage mixte professionnel et privé. Les panneaux coulissants constituent l'élément signature du projet, offrant cette flexibilité indispensable entre ouverture et intimité, tandis que les aménagements sur mesure optimisent chaque mètre carré.
Le projet démontre comment une réflexion approfondie sur les circulations et la modularité des espaces peut transformer radicalement l'usage d'une maison, en créant des lieux qui s'adaptent aux besoins de leurs occupants plutôt que l'inverse.
Les circulations du rez-de-chaussée ont été fortement repensées. L'entrée, vaste mais inexploitable dans sa configuration initiale, représentait un défi particulier. J'ai créé des rangements sur mesure aux angles arrondis qui structurent cet espace tout en le rendant fonctionnel : un banc à tiroirs qui offre à la fois assise et stockage, et une armoire qui complète les capacités de rangement.
Ces éléments sur mesure permettent d'exploiter intelligemment les volumes disponibles tout en créant un parcours fluide dès l'entrée dans la maison.









