Skinny House - Rénovation Maison Étroite 2,3m - Triplex et Escalier Japonais
Rénovation d'une maison étroite à Biarritz : optimiser 2,3m de large en triplex
Cette maison de 60m² à Biarritz, vendue conjointement avec un appartement d'un immeuble accolé, est pour le moins atypique avec ses 2,3m de large. Réaménager complètement l'espace et le rendre agréable à vivre pour une famille en vacances était un défi que j'ai eu le plaisir de relever.
Recréer une maison indépendante
Le rez-de-chaussée avait été coupé des étages et laissé à l'abandon. Le premier niveau était accessible depuis les parties communes de l'immeuble d'à-côté, mais l'idée était désormais de recréer une maison indépendante avec un accès unique depuis la rue, pour la destiner à la location saisonnière.
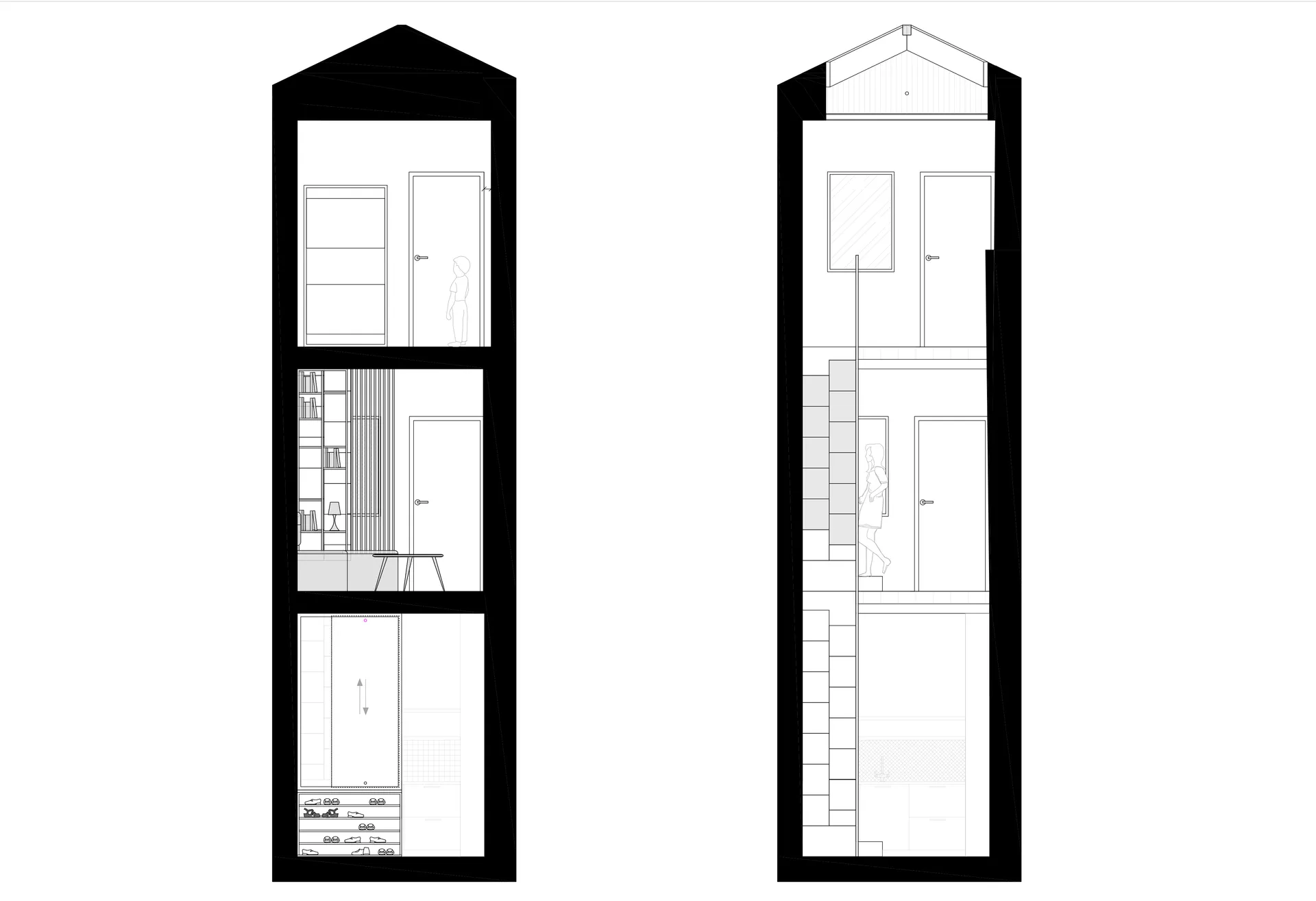
L'escalier, en étant central, a déjà l'emplacement idéal pour que les pièces ne soient pas en enfilade. Cela permet également de laisser passer la lumière zénithale jusqu'au rez-de-chaussée par les trémies, puisque la partie centrale du toit est vitrée.
Un escalier japonais comme pièce maîtresse
Malgré tout, l'escalier existant était vieillot et, au vu des dimensions de la maison, il représente vraiment un élément central. Il fallait donc dessiner une pièce marquante, adaptée à l'étroitesse des plateaux, et qui donne en même temps du caractère à la maison.
J'ai donc opté pour un escalier japonais et des garde-corps en câbles tendus. Les trémies sont inversées pour laisser passer plus de lumière émanant du toit et des fenêtres sur rue. C'est très important, étant donné que la cuisine est désormais placée au bout du plateau du rez-de-chaussée, pour plus de praticité au quotidien.
La salle à manger est entre l'entrée et la cuisine, avec un mobilier qui peut complètement se rabattre ou se ranger pour dégager le plateau entre les repas.




Des aménagements sur mesure à chaque niveau
À l'étage, un salon petit mais convivial est aménagé au-dessus de l'entrée, bénéficiant de la fenêtre sur rue. De grandes banquettes sur mesure évitent d'encombrer l'espace avec du mobilier classique de salon – canapé, fauteuil – non adapté à ces dimensions. La pièce n'est pas fermée par un mur mais par une bibliothèque sans fond qui laisse passer la lumière de part et d'autre.
De l'autre côté, une grande salle d'eau – douche, double vasque, lave-linge et toilettes – avec un imposte vitré opaque pour avoir de la lumière naturelle en second jour.
Enfin, le dernier étage accueille les chambres, avec là encore un imposte vitré pour la chambre ne disposant pas de fenêtre.


Le résultat : une "skinny house" fonctionnelle et lumineuse
Cette rénovation de maison étroite démontre comment il est possible de créer un logement parfaitement fonctionnel malgré une largeur de seulement 2,3m. L'escalier japonais devient la colonne vertébrale architecturale de la maison, tandis que le mobilier sur mesure – banquettes, table rabattable – s'adapte aux contraintes dimensionnelles.
La gestion de la lumière naturelle est essentielle dans une maison aussi étroite : le toit vitré, les trémies inversées et les impostes vitrés permettent de faire circuler la lumière jusqu'au rez-de-chaussée. Un projet atypique qui transforme une contrainte extrême en atout pour cette maison de vacances à Biarritz.
Quelques images de l'espace existant













