Gambetta - Rénovation Appartement Mansardé Paris 20e - 47m²
Rénovation d'un appartement de 47m² : retrouver le charme des mansardes
Cet appartement de 47m² dans le 20e arrondissement de Paris, à deux pas du métro Gambetta, est le fruit de la réunion de plusieurs anciennes chambres de bonnes. L'une des chambres avait toujours son accès sur le palier et ne faisait donc pas encore réellement partie du reste de l'appartement. L'état du bien était vétuste, et tout était à mettre aux normes.
Un grand couloir étroit amenait à ce qui était la pièce à vivre, tandis qu'une minuscule salle d'eau et une chambre avaient leur accès sur le côté depuis ce couloir. Le jeune couple qui acquiert le bien souhaite repartir de zéro et explorer plusieurs pistes d'agencements possibles.
Le dilemme : où placer la pièce à vivre ?
La question première – et cruciale – qui se pose est le choix de l'emplacement des pièces. La pièce à vivre bénéficiait de deux fenêtres offrant une vue magnifique sur tout Paris, tandis que les chambres avaient une vue dégagée sur la cour de l'immeuble. La logique première voudrait que l'on donne le plus beau panorama à la pièce à vivre, seulement cela impose de conserver le très grand couloir qui fait perdre de précieux mètres carrés.
Si les chambres deviennent la pièce à vivre, le couloir peut être intégré dans cet espace et l'espace de vie se trouve tout de suite à l'entrée de l'appartement, ce qui a beaucoup plus de sens. Les deux grandes options ont été explorées dans chacune trois ou quatre déclinaisons possibles, et c'est finalement l'inversion des pièces qui a remporté la partie.
Les contraintes structurelles : poteaux et mansardes
La contrainte principale qui a modelé l'agencement des pièces est l'emplacement de plusieurs poteaux et conduits dont la suppression est impossible. Le premier est visible dans l'actuelle pièce à vivre et soutient la charpente. Le même est dissimulé dans la cloison séparant les deux chambres, à abattre pour créer la grande pièce à vivre.
Les fortes mansardes présentes dans tout l'appartement constituent la deuxième contrainte principale : la circulation sur une bande de 1m50 le long des fenêtres est limitée, il faudra donc plutôt consacrer ces volumes au rangement.


Plan existant : la pièce à vivre est à gauche, avec un poteau soutenant la charpente au milieu. L'accès à la deuxième chambre se fait par le palier, et le même poteau se trouve dans la cloison séparative des chambres.
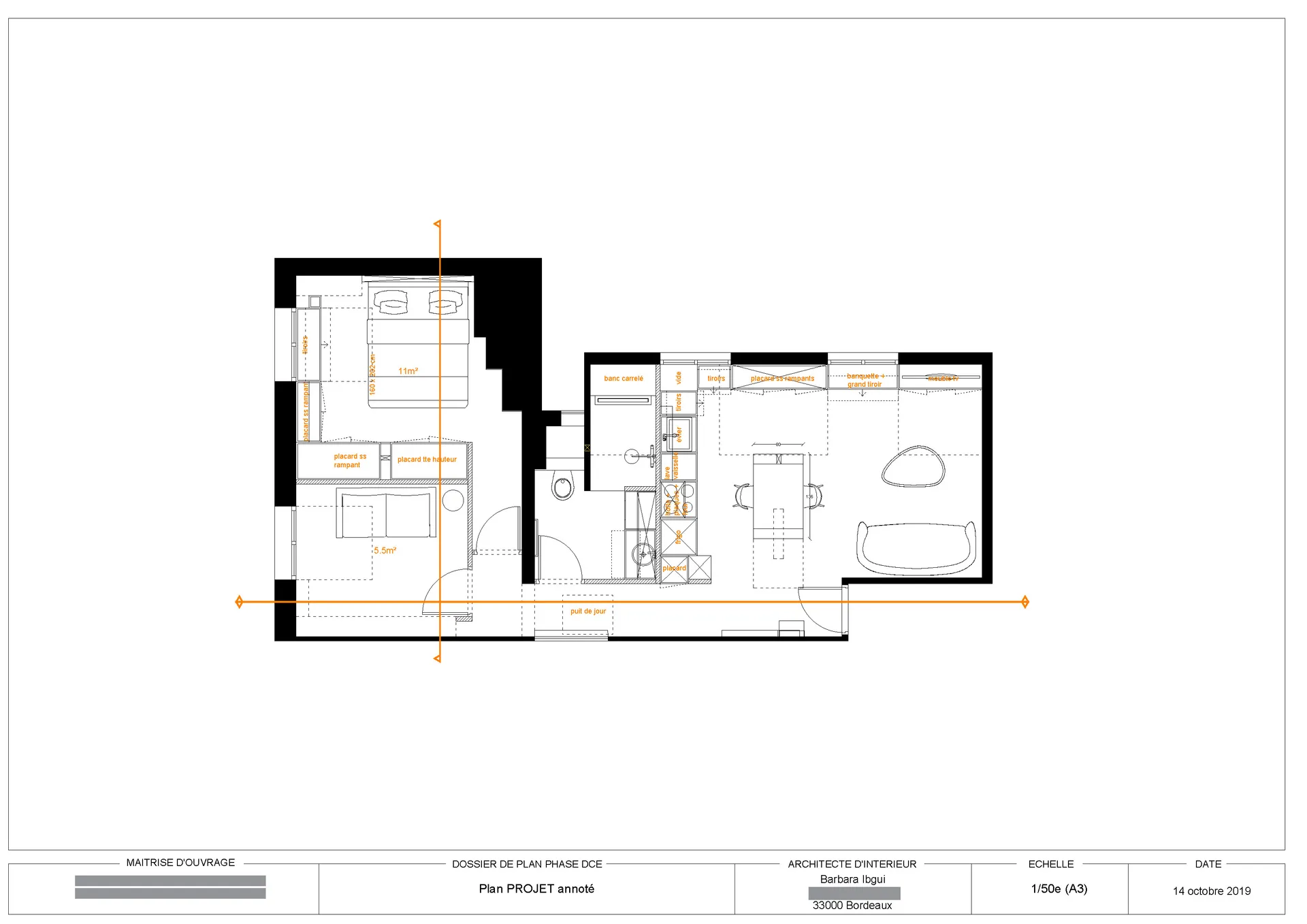
Plan projet : les chambres sont installées dans l'ancienne pièce à vivre, la salle d'eau est agrandie jusqu'à la fenêtre et la pièce à vivre prend place dans les anciennes chambres, ouvertes au maximum pour casser le couloir.
La nouvelle distribution : optimiser chaque centimètre
Les chambres sont installées dans l'ancienne pièce à vivre, la salle d'eau est agrandie jusqu'à la fenêtre et la pièce à vivre prend place dans les anciennes chambres, ouvertes au maximum pour supprimer le couloir.
La cuisine est installée perpendiculairement aux fenêtres, pour bénéficier d'un maximum de lumière et de la grande hauteur sous plafond. Tout le linéaire sous les rampants est optimisé par des rangements sur mesure : d'abord des tiroirs qui complètent la cuisine, puis des placards, une banquette à tiroir et un meuble TV qui vient servir le coin salon.
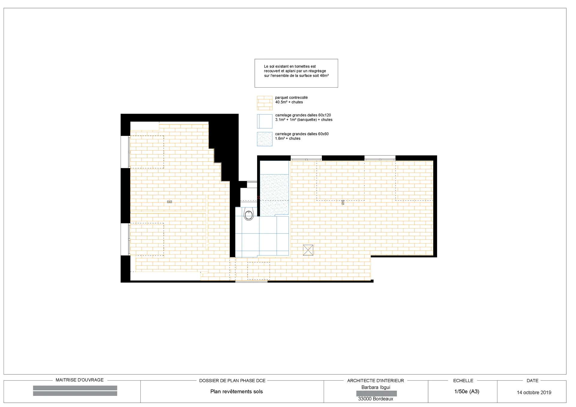
Le sol en tomettes très abîmées est recouvert par un parquet contreplaqué en chêne clair dans tout l'appartement, sauf la salle d'eau.














Les chambres : une principale généreuse et un bureau polyvalent
Le jeune couple n'ayant pas d'enfant, le parti a été pris de faire la part belle à une chambre principale et de créer une deuxième pièce plus petite qui servira de bureau et de chambre d'appoint. Une belle porte vitrée permet de conserver l'apport de lumière venant de la fenêtre de cette pièce désormais fermée. Du vert céladon, un papier peint graphique et du mobilier bien choisi apportent douceur et fonctionnalité.
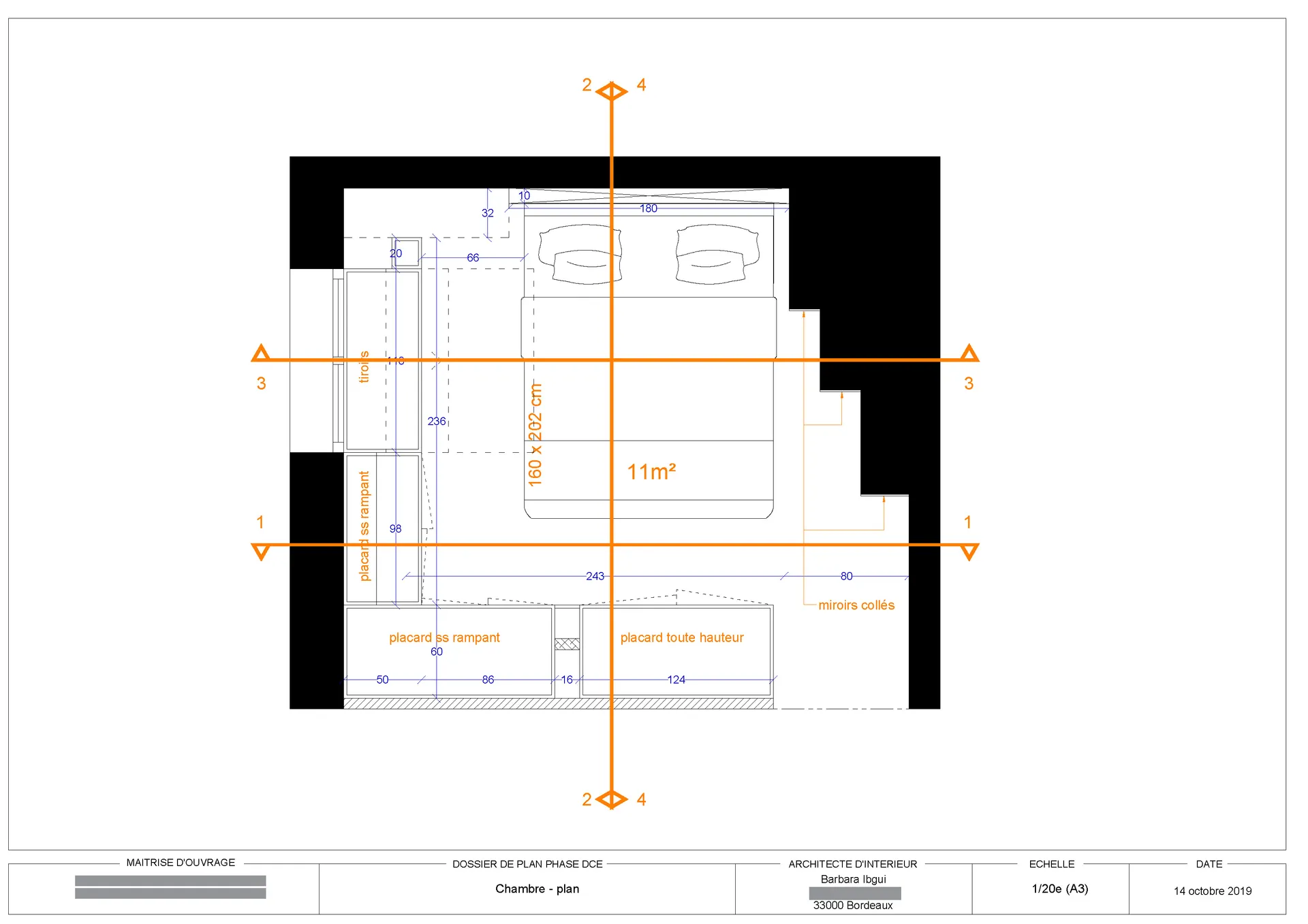
La chambre principale, de par ses dimensions, se trouve dotée de nombreux rangements sur mesure pour optimiser au maximum l'espace. Un grand dressing en deux parties est placé de part et d'autre du poteau caché par un fileur, tandis que des tiroirs et placards sont placés sous la fenêtre. Les gros conduits de l'immeuble en débord sur la chambre sont plaqués de miroirs pour jouer avec cette originalité tout en ayant de quoi se regarder en pied. Une tête de lit en plâtre avec une petite niche permet de pallier au manque de place sur les côtés. Des tons très doux sont utilisés, avec une touche de gris sombre en tête de lit pour donner de la profondeur à la pièce.
Le petit bureau



La chambre





Une salle d'eau optimisée et lumineuse
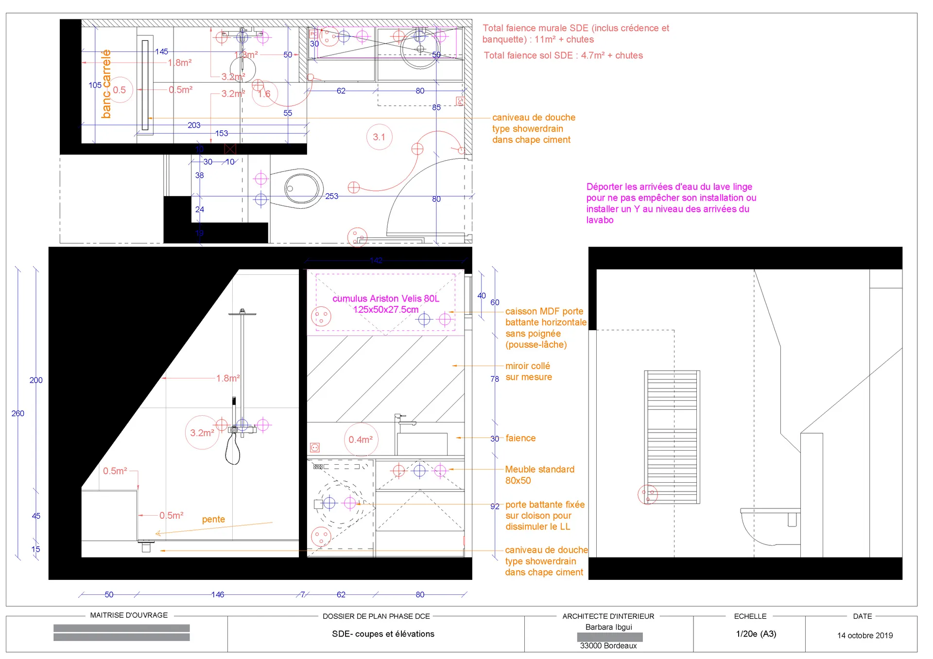
Les WC ont été laissés à leur place, plutôt pratique, mais sont remplacés par un bloc Geberit avec cuvette suspendue pour une finition plus soignée et un entretien plus facile. Une grande douche vient se nicher entre le mur existant et la cloison montée à fleur de la fenêtre, contre laquelle est installée la cuisine côté séjour.
L'espace sous les rampants, peu exploitable, est conservé pour garder un beau volume. La banquette carrelée permet de fermer la partie trop pentue et de poser des produits de soins ou des plantes aquatiques. Des carreaux grand format habillent les murs de la douche et le sol de la pièce, dans des tons sable et ardoise.
Le cumulus est dissimulé en hauteur par un meuble sur meuble et le lave-linge est installé sous le plan vasque en chêne stratifié. Un grand miroir épouse toute la largeur du coin vasque pour agrandir l'espace. Un éclairage naturel en second jour est récupéré du couloir – qui bénéficie d'une fenêtre et d'un puits de lumière – grâce à un imposte vitré.






Le résultat : un appartement sous combles optimisé
Cette rénovation d'appartement sous combles dans le 20e arrondissement de Paris démontre l'importance d'explorer toutes les options d'agencement avant de se lancer. En inversant la fonction des pièces – chambres et pièce à vivre – nous avons pu supprimer le long couloir qui gaspillait de précieux mètres carrés et placer l'espace de vie immédiatement à l'entrée.
La solution ingénieuse de la table intégrant le poteau structurel illustre comment transformer une contrainte architecturale majeure en pièce maîtresse de l'aménagement. Plutôt que de subir la présence de ce poteau, nous en avons fait un élément fonctionnel et esthétique.
Les rangements sur mesure exploitant systématiquement les espaces sous mansardes, le parquet en chêne clair qui unifie l'ensemble, et l'attention portée à la lumière naturelle créent un appartement parisien chaleureux et parfaitement optimisé. Un projet où chaque centimètre carré a été pensé pour offrir confort et fonctionnalité dans ces 47m² réinventés sous les toits de Paris.
Les dessous du résultat final
Un existant challengeant l'imagination, des pistes très variées explorées pour convenir au mode de vie et au cahier des charges des propriétaires, et un dossier technique complet pour permettre une réalisation fidèle (même sans mission de suivi de chantier)
Photos de l'existant avant travaux






Les pistes de réflexion explorées en phase Esquisse
A gauche, les trois propositions qui inversent pièce de vie et pièces de nuit. A droite, la disposition actuelle est conservée. La visite d'un BET a indiqué la nécessité de conserver le conduit de cheminée, qui se trouve dans une des chambres, et surtout la présence d'un poteau dans la cloison séparant les deux chambres (le même que celui visible dans le séjour actuel). Cela a participé à remodeler ces propositions de base.
Au vu de leurs besoins et de leur mode de vie, les propriétaires ont souhaité avoir une grande chambre avec beaucoup de rangements pour eux, et une seconde petite pièce d'appoint multifonction. La salle de bain centrale a également été préférée, pour être au plus près des chambres et bien séparée de la pièce de vie. Mais en réduisant sa taille, il était possible d'y adosser une cuisine linéaire, pour que cette dernière ne soit pas enclavée près des sous pentes.

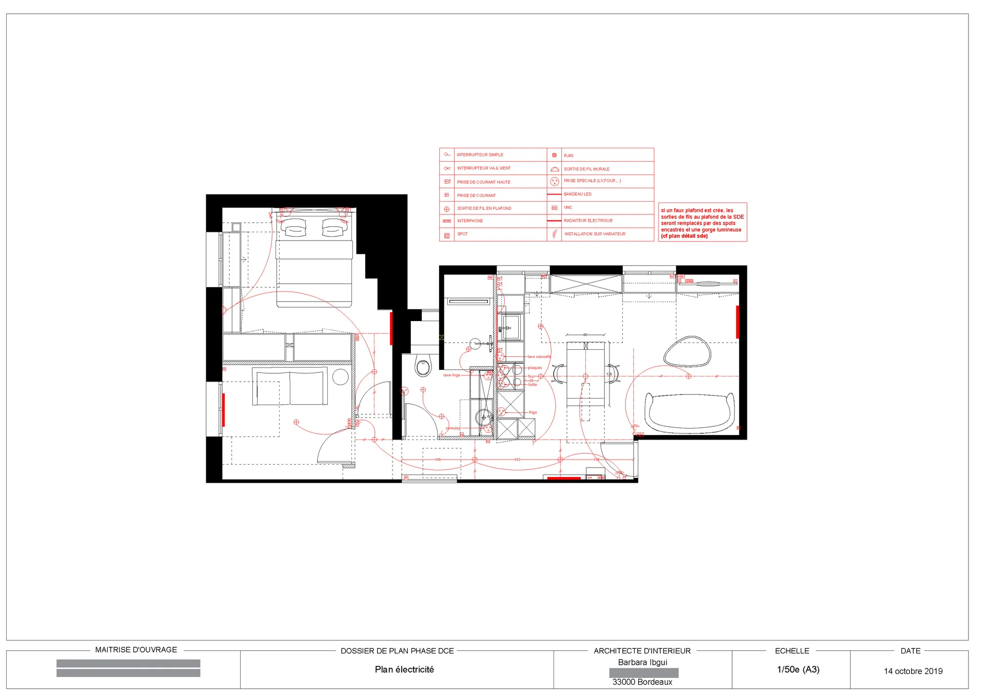
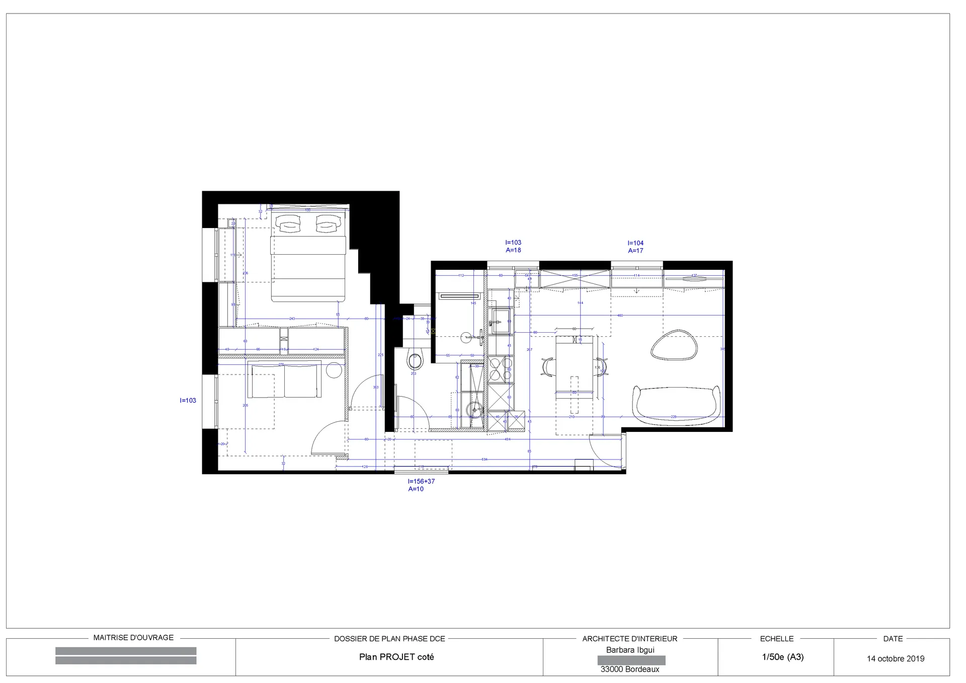
Dossier de plans réalisé pour le chiffrage et l'exécution du projet




















