Jeu de Paume - Rénovation partielle d'une maison de maître Art Déco à Bordeaux en deux temps
Une rénovation menée sur plusieurs années, pièce par pièce, pour retrouver l'élégance Art Déco d'une grande demeure familiale de Caudéran.
Localisation : Bordeaux — Caudéran (33000)
Surface : 220 m² — 3 niveaux
Programme : Rénovation partielle en deux phases (2020 et 2025)
Mission : Conception partielle — ESQ à APD, sans suivi de chantier
Style : Art Déco contemporain
Une maison de maître Art Déco à réveiller, un projet à construire dans le temps
Acquise en 2020 dans le quartier chic et familial de Caudéran à Bordeaux, cette maison de maître Art Déco de 220 m² sur trois niveaux avait perdu une grande partie de son charme au fil de rénovations successives qui l'avaient progressivement dénaturée. Les nouveaux propriétaires — une grande famille avec de jeunes enfants — ont choisi une approche pragmatique : rénover par étapes, en priorisant les espaces les plus urgents, sans sacrifier l'ambition du résultat.
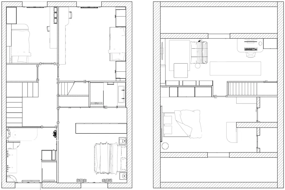
Deux phases de conception ont été menées : la cuisine et la chambre parentale en 2020, puis la salle de bain familiale, les chambres d'enfants et l'aménagement des combles en 2025. Un projet au long cours, cohérent dans son écriture stylistique de bout en bout.
2020 — Première phase : cuisine et chambre parentale
La cuisine : Art Déco contemporain sur base Ikea
Première priorité absolue en s'installant : refaire entièrement une cuisine peu pratique et sans caractère pour une famille avec de jeunes enfants. Un mini cellier inutilisable a été supprimé et son volume intégré à la cuisine pour l'agrandir et améliorer la circulation.
Le parti pris esthétique est clair dès le départ : renouer avec l'esprit Art Déco de la maison, avec une approche contemporaine et accessible. La base est constituée de caissons Ikea habillés de façades vert forêt à cadres Plum Kitchen — un choix malin qui prouve qu'une cuisine sur mesure dans l'esprit n'implique pas nécessairement un budget sur mesure dans les prix.
Le sol en carrelage à motif Art Déco, la quincaillerie en laiton — suspensions, robinetterie, poignées — et la niche en noyer viennent compléter l'ensemble avec soin.
Les meubles hauts blancs au-dessus de l'évier s'effacent volontairement pour alléger la composition.
Détail fonctionnel essentiel pour la vie de famille : une table de repas intégrée à la cuisine permet notamment aux enfants de prendre leurs repas dans cet espace, tandis que les parents dînent éventuellement plus tard. C'est également indispensable en terme de praticité de pouvoir prendre les petits déjeuners directement dans la cuisine sans avoir à aller dans la salle à manger attenante.





La chambre parentale : reproportionner l'espace pour intégrer un vrai dressing
Deuxième chantier prioritaire de cette première phase : la chambre parentale, vaste mais mal exploitée. Un linéaire de rangement, sans monter jusqu'au plafond, vient redéfinir le coin nuit côté fenêtre et créer un véritable espace dressing. Un grand miroir pleine largeur au fond de ce nouveau volume agrandit visuellement les perspectives et offre le recul nécessaire pour s'y voir habillé.
L'écriture stylistique, classique mais résolument moderne, redonne à cette belle pièce le cachet qu'elle avait perdu.




2025 — Deuxième phase : salle de bain, chambres d'enfants et combles


La grande salle de bain familiale : charme Art Déco et ergonomie retrouvés
Quelques années plus tard, la grande salle de bain attenante à la chambre master appelait elle aussi une transformation complète. L'enjeu : lui redonner du charme et améliorer son ergonomie en y ajoutant une baignoire, sans alourdir inutilement les travaux.
La douche et la vasque sur pied Art Déco d'origine — dont l'emplacement était bon — ont été conservées.
En revanche, le grand placard intégré, encombrant et gênant la circulation, a été supprimé pour laisser place à une baignoire semi-îlot. Un grand miroir sur mesure a été dessiné spécifiquement pour la pièce, et des rangements en noyer ajoutés autour de la vasque sur pied pour compenser l'absence de rangements intégrés qu'offrirait un meuble-vasque classique.
L'exercice de style est soigné : un carrelage à motif vert habille l'ensemble des murs, associé à un sol en granito clair. Des caissons standards Ikea avec façade noyer sont apposés contre la nouvelle cloison de douche pour compenser la suppression du placard. L'ancienne seconde porte donnant directement dans la chambre parentale est rebouchée et transformée en pan de mur revêtu de noyer et de cannage, où sont installées des patères pour les serviettes de toute la famille.







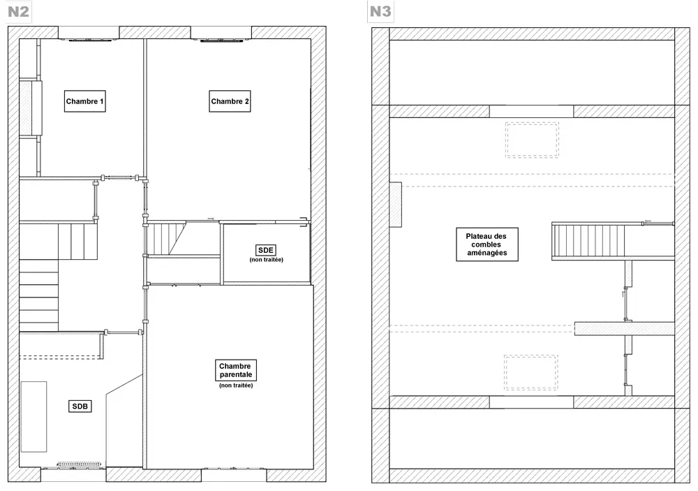
Les chambres d'enfants : évolutivité avant tout
Trois enfants, trois chambres, un mot d'ordre commun : concevoir des espaces qui accompagnent leur croissance sans nécessiter une nouvelle intervention dans quelques années.
Chambre de la plus jeune — optimisation maximale d'une petite surface
La chambre la plus petite, occupée par une enfant d'à peine un an au moment du projet, afait l'objet de beaucoup d'hésitation et d'essais d'aménagements différents : garder la cheminée ou non ? Faire un lit en hauteur pour libérer de la place au sol ou rester plus simple ? Des essais très variés ont permis au couple de trancher. La cheminée et les placards existants ont été supprimés pour installer un lit au sol, avec un grand tiroir sous le sommier pour ranger les jouets les plus encombrants. En face, un grand linéaire à base de meubles Ikea complète le rangement. Un caisson de dressing standard, très pratique, est placé entre le conduit de cheminée et la fenêtre. De l'autre côté du conduit, le deuxième renforcement fait office de chevet et de bibliothèque à portée des petites mains.






Chambre du deuxième enfant — flexibilité de la taille du lit
Plus âgé et disposant d'une pièce plus grande, ce deuxième enfant avait besoin d'un aménagement qui ne fige pas la pièce dans une configuration imposée. La taille du lit varie selon l'âge et il était indispensable d'anticiper ce changement à venir. Une grande arche composée de caissons Ikea court sur tout un pan de mur, avec une réservation centrale de 2 mètres : aujourd'hui un lit banquette une place s'y installe, demain un lit double pourra le remplacer dans l'autre sens sans retoucher à l'agencement. En vis-à-vis, un meuble Tylko assure rangement et coin bureau.









L'aménagement des combles : bureau, espace famille et chambre d'adolescent
Le plateau des combles représentait le défi le plus complexe du projet, et aussi celui qui a nécessité le plus de réflexion en amont. Les propriétaires hésitaient sur les usages à y installer et sur l'opportunité de diviser ou non l'espace.
La phase esquisse, menée autour de plusieurs scénarios distincts, a permis de trancher : le plateau est divisé en deux. Une première pièce-palier accueille le bureau de la propriétaire qui télétravaille régulièrement, ainsi qu'un coin télé, jeux et bibliothèque familiale. Elle donne accès à la chambre du fils aîné, une chambre de pré-adolescent pensée avec soin, dotée de nombreux rangements et d'un bureau intégré.














Rénovation partielle, résultat total : l'Art Déco réinventé à Bordeaux
Ce projet bordelais illustre parfaitement qu'une rénovation partielle, bien pensée et cohérente dans son écriture, peut transformer en profondeur l'identité d'une maison. En deux phases espacées de cinq ans, cette maison de maître Art Déco de Caudéran a retrouvé le caractère et l'élégance que des décennies de rénovations hasardeuses lui avaient ôtés — tout en s'adaptant avec précision aux modes de vie d'une grande famille contemporaine.
Mission : Conception partielle — ESQ, APS, APD. Sans suivi de chantier.