Mirabella - Rénovation maison de maître Art Déco 210m² — Hyères (83)
Rénovation complète d'une maison de maître Art Déco à Hyères : redistribution des espaces, cuisine bleue sur mesure, suite master, 5 chambres. Conception intérieure sur 210 m².
Projet : Rénovation complète d'une maison de maitre Art Déco
Localisation : Hyères (83 400)
Programme : rénovation complète
Surface : 210m² sur deux niveaux
Mission : Conception complète (esquisse, APS, APD, DCE avec descriptif travaux) sans suivi de chantier
Cette maison de maître Art Déco à Hyères est bien plus qu'un projet de rénovation : c'est la remise en vie d'un patrimoine familial. Transmise par héritage, elle concentre autant d'affect que de mètres carrés à réinventer. Le défi ? Lui redonner tout son caractère sans trahir son histoire, tout en l'adaptant aux besoins d'une grande famille contemporaine.
L'entrée : magnifier le grand hall sans le dénaturer
Le hall d'entrée d'une maison de maître impose d'emblée sa présence : grand volume, hauteur sous plafond généreuse, sol en marbre existant. Mais ici, ce marbre aux teintes jaunes vieillies et l'absence totale de rangement trahissaient le potentiel du lieu. Avec des murs porteurs de part et d'autre et des pièces mitoyennes sur lesquelles on ne pouvait empiéter, les interventions structurelles étaient limitées ; et c'est justement là que réside la force du projet.
La solution : des détails qui changent tout. La double porte de gauche a été fermée pour y installer une verrière mi-hauteur côté salle à manger, dont l'épaisseur de mur se transforme en banquette pour se chausser. Un grand meuble sur mesure toute hauteur, aux angles arrondis, apporte enfin les rangements indispensables, dans la teinte exacte des murs pour une intégration discrète.
Le plafond peint en vert foncé, les encadrements des ouvertures et les contremarches en noyer, et le papier peint panoramique dans la cage d'escalier composent un ensemble qui redonne profondeur, charme et cachet à ce hall. La vue en enfilade sur l'escalier rénové, mise en valeur, redevient la signature de la maison.
Parti pris de design
Quand la contrainte structurelle est totale, c'est la minutie des détails qui fait tout : couleur, matière, lumière. Le hall reste dans ses proportions originales mais devient méconnaissable.












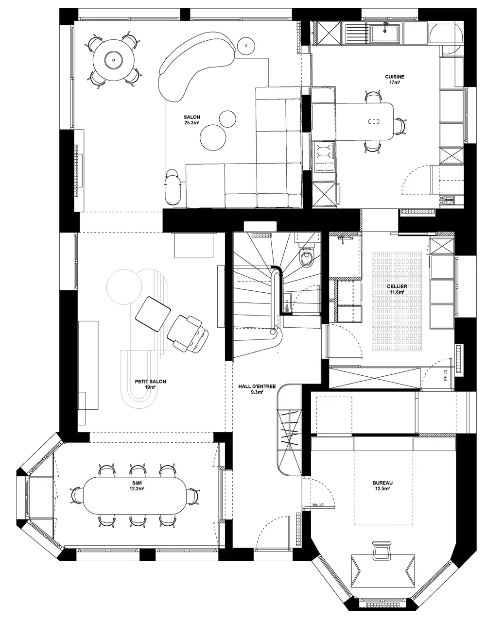
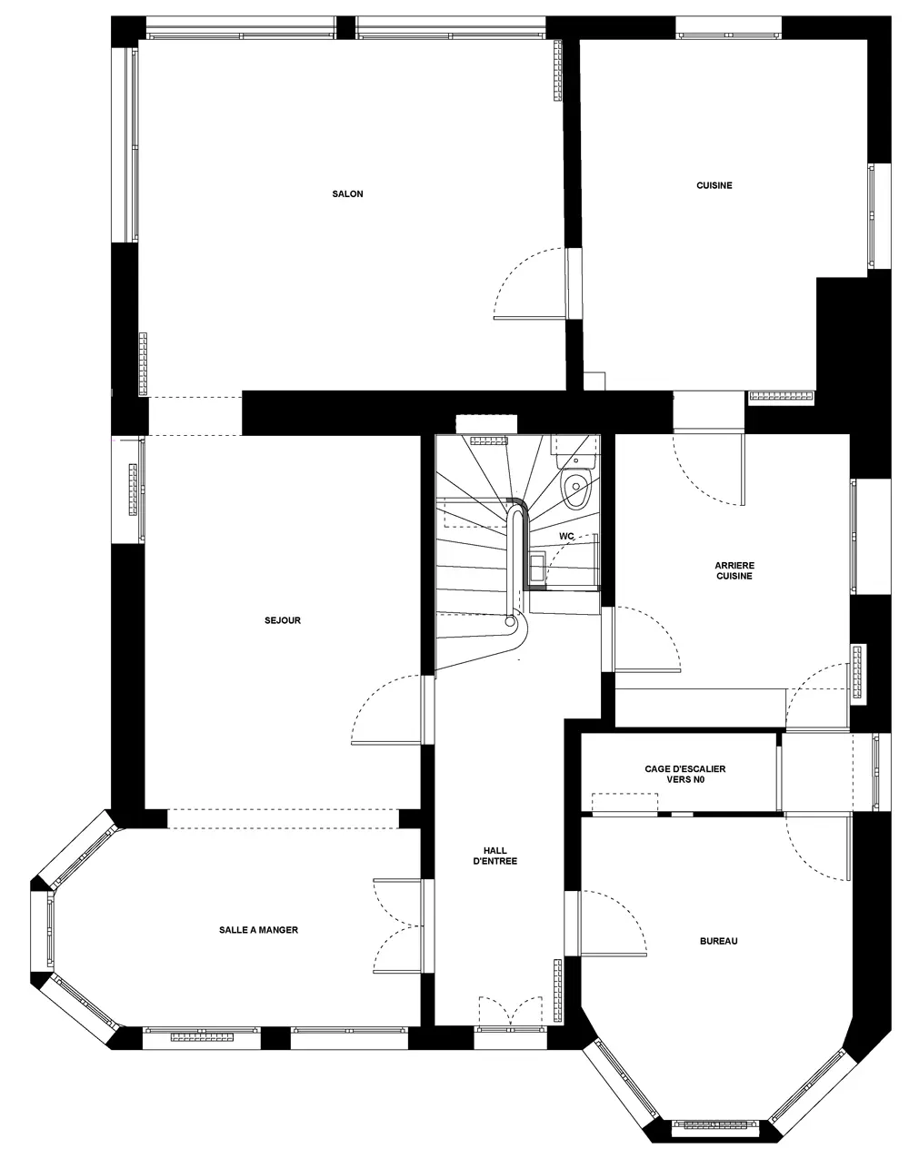
Le rez-de-chaussée : réorganiser les usages pour mieux vivre
Trois volumes, trois usages distincts
Le rez-de-chaussée a été entièrement repensé dans sa distribution. Le passage vers les pièces à vivre a été agrandi pour faire respirer les espaces et fluidifier la circulation. Le volume central accueille désormais un petit salon de lecture et de repos. Le bow-window sur rue est dédié à la salle à manger de réception. Et la grande pièce donnant sur le jardin, qui est aussi la plus lumineuse et la plus ouverte, devient le cœur de vie quotidien : salon et coin repas du quotidien.
Un sol unique en carrelage grand format effet pierre se déploie sur tout le rez-de-chaussée, unifiant visuellement l'ensemble et créant une continuité élégante entre les espaces.























La cuisine : fermée mais communicante
Les propriétaires tenaient à conserver une cuisine fermée, un choix de vie assumé. Pour autant, l'isolement total n'était pas souhaitable. La réponse : une nouvelle porte verrière et une verrière mi hauteur en lieu et place de l'ancienne porte rebouché, pour clore la cuisine tout en maintenant le lien visuel avec le salon.
L'esthétique de la cuisine est résolument affirmée : bleu nuit, plan de travail en marbre et détails en noyer. Une palette élégante et intemporelle, pleine de caractère.










Le cellier-buanderie dans le prolongement adopte les mêmes codes, avec une douche discrètement intégrée pour une plus grande modularité des usages sur le long terme. Le grand meuble existant, conservé pour sa capacité de rangement, a été entièrement relooké pour s'accorder à la nouvelle décoration.








Le bureau — chambre d'amis
La boucle de circulation inutile vers l'ancienne arrière-cuisine a été supprimée, en condamnant la porte donnant sur cette pièce. Seule celle donnant sur le couloir est conservée. La pièce est aménagée en bureau-chambre d'amis avec un lit escamotable intégré dans un grand linéaire bibliothèque sur mesure : une solution qui maximise l'usage de la pièce sans sacrifier son caractère. La douche installée dans le cellier-buanderie peut ainsi ponctuellement servir aux hôtes si besoin, dans un premier temps.






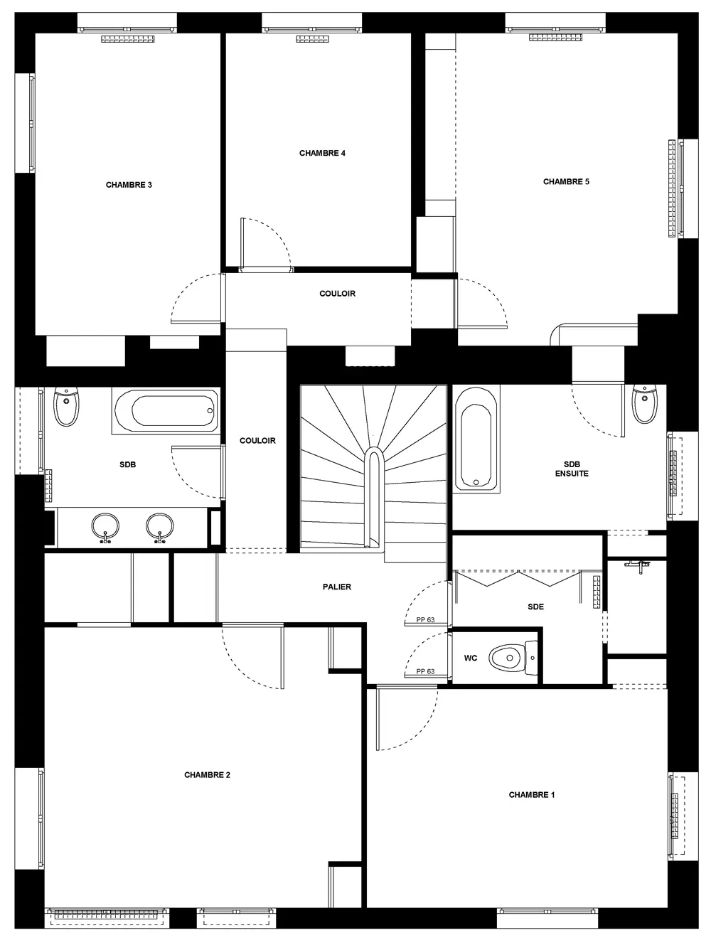
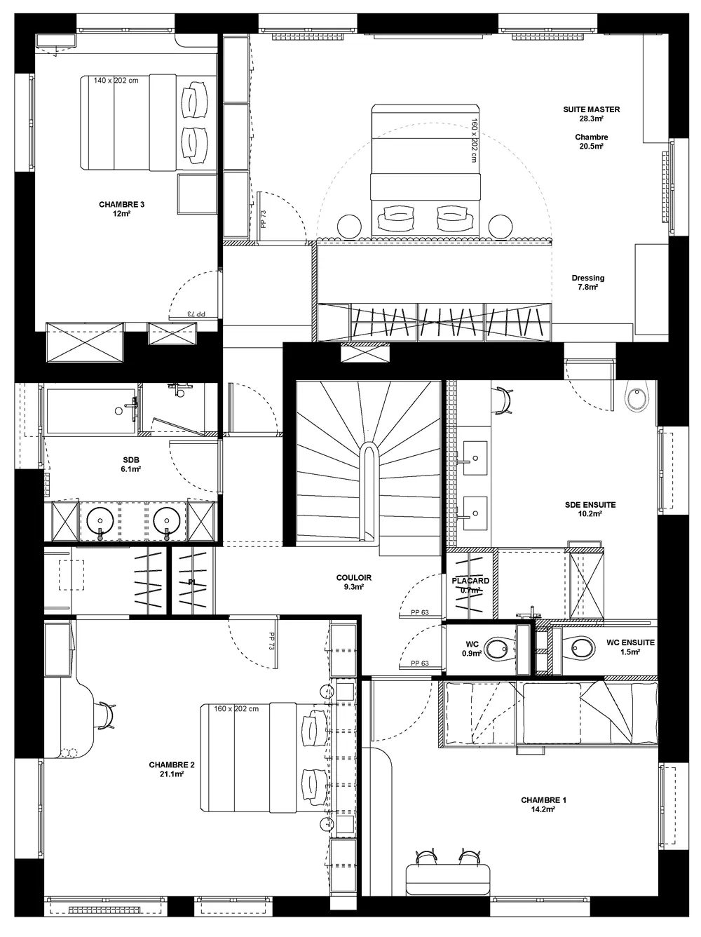
L'étage : suite parentale, chambres d'enfants et salle de bain familiale
Le cloisonnement de l'étage a été intelligemment revu pour répondre au programme familial : une chambre dortoir pour les petits-enfants, deux chambres pour les grands enfants, une salle de bain familiale, et une suite master vue jardin avec grand dressing et salle d'eau privative. Pas de table rase de l'existant à la hache, mais des ajustements ciblés bien pensés, essentiel pour satisfaire les nouveaux besoins.
Le grand palier de l'étage est magnifié par le nouveau traitement de la cage d'escalier, l'ajout de soubassements moulurés et un parquet à bâtons rompus déployé sur l'intégralité de l'étage.









La chambre dortoir des petits-enfants
Un bloc sur mesure regroupe lit superposé et rangements jouets sur toute la hauteur, libérant ainsi un maximum de surface au sol pour le jeu. Teintes douces — vert menthe à l'eau, papier peint graphique et une échelle jaune sur mesure donnent à cette chambre une personnalité joyeuse, cohérente et facile à vivre, évolutive.







La chambre de la fille cadette
Encore engagée dans de longues études supérieure, elle avait besoin d'un vrai bureau et de généreux rangements.
Le principe d'arche existant a été conservé mais entièrement repensé pour allier fonctionnalité et esthétique. Camaïeu de roses et bois clair se déploient pour une ambiance douce et studieuse.







La salle de bain familiale : petite surface, grand caractère
Dans une surface contenue, cette salle de bain déploie un vrai programme : douche et baignoire, double vasque, colonnes de rangements et une multiplicité de revêtements assumés. Mosaïque en bâtonnets glossy bordeaux, grès cérame effet travertin, marbre noir au sol remontant sur la baignoire et dans la douche, meubles vert profond et chêne, vasques avec liseré noir, robinetterie et appliques en laiton, grands miroirs très décoratifs. Une pièce dense, travaillée, dont le charme est unique, pour un effet "comme à l'hôtel".








La chambre du fils aîné
Les renfoncements existants dans le mur porteur ont été optimisés avec des caissons de profondeur standard qui, dépassant volontairement, semblent flotter. Des chevets-commodes ajoutent du rangement utile, et un agencement sur mesure autour de la fenêtre accueille une bibliothèque généreuse. Noyer, rafia, bleu-vert profond et laiton composent une ambiance masculine, chaleureuse et élégante.







La suite master : le projet dans le projet
Née de la fusion de deux anciennes chambres et d'une partie du couloir, la suite master est optimisée au centimètre pour répondre aux besoins de rangements des propriétaires, et leur envie d'espace. Son élément signature : un grand claustra en bois sur mesure aux inspirations Art Déco, qui crée l'espace dressing tout en faisant tête de lit — un meuble architectural à part entière. Un autre pan de mur entier est dédié aux rangements des vêtements pliés (moins de profondeur nécessaire que pour les cintres) et deux meubles de famille complètent l'aménagement.
La salle d'eau attenante, agrandie, est entièrement métamorphosée : grand carrelage effet marbre di Calacatta au sol et dans la douche, contraste avec un carrelage mural marbre noir, des murs bordeaux et une robinetterie en laiton.
Un grand linéaire sur mesure pleine largeur accueille double vasque et coin coiffeuse. Les WC, indépendants, complètent l'ensemble.

















Un projet de rénovation entre héritage et caractère contemporain
Cette rénovation complète d'une maison de maître Art Déco à Hyères illustre ce qu'une conception intérieure ambitieuse peut accomplir : respecter la structure d'une demeure d'exception, en corriger les dysfonctionnements, et lui insuffler une identité forte, personnelle tout en étant intemporelle.
Le fil conducteur ? La juste balance entre le charme classique de l'Art Déco et une contemporanéité assumée, au service d'une famille qui a voulu que cette maison — leur maison — leur ressemble vraiment.
Mission : Conception complète — ESQ, APS, APD, DCE avec descriptif travaux. Sans suivi de chantier.