St Germain - Extension de 40m² + Rénovation - Maison en pierre Bâti ancien
Agrandir une maison en pierre : créer une extension qui cadre le jardin
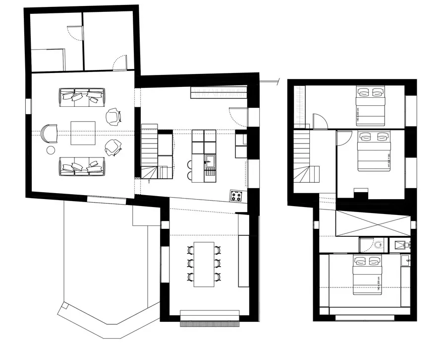
Cette belle bâtisse en pierre, dans la famille depuis de nombreuses années, avait besoin d'être modernisée, notamment la cuisine. Les propriétaires souhaitaient également l'agrandir pour ajouter une petite chambre et une salle d'eau à l'étage, et créer une grande pièce de vie ouverte au rez-de-chaussée.
Le défi : ouvrir sur le jardin sans dénaturer la bâtisse
Le corps principal de la maison, comme traditionnellement, était très peu ouvert sur l'extérieur, rendant l'intérieur assez sombre et coupé du beau jardin. Cependant, les propriétaires ne souhaitaient pas dénaturer la bâtisse en pierre en y greffant une extension en totale rupture avec l'existant. Cette dernière étant assez imposante par rapport à la taille initiale de la maison, garder un revêtement en pierre permet de beaucoup mieux l'intégrer et de donner l'impression que les choses ont toujours été ainsi.
Une extension dans la continuité architecturale
Le parti a donc été pris de dessiner une extension avec un toit en pente simple, dans la continuité du toit existant, venant se caler dans la surface laissée par la terrasse présente devant l'aile de plain-pied. Une très grande ouverture a été créée dans la nouvelle façade jardin Sud, surmontée d'une ouverture bandeau pour l'étage.
Une baie vitrée à gauche permet d'accéder à la terrasse directement, tandis que des ouvertures fixes en forme de meurtrières, en haut et en bas, laissent la lumière traverser la maison d'Est en Ouest. Ces fenêtres verticales évoquent l'architecture traditionnelle tout en apportant une touche contemporaine.



Un rez-de-chaussée métamorphosé
L'agrandissement jusqu'à la terrasse existante transforme radicalement le rez-de-chaussée. L'étage devient également beaucoup plus fonctionnel grâce à l'ajout du WC indépendant et de la petite salle d'eau.
Un vide sur séjour a été laissé au niveau de l'ancien mur de façade pour créer une sensation de volume et connecter les deux niveaux de la maison. De plus, cela permet à la lumière de l'Est de pénétrer dans la salle à manger, sans avoir à créer de fenêtre au rez-de-chaussée qui aurait donné une vue peu esthétique sur les voisins et le stationnement.




La cuisine repensée dans une ambiance naturelle
Vue de l'intérieur, la cuisine a été entièrement repensée et s'ouvre désormais sur la salle à manger, installée dans l'extension. La grande ouverture sur le jardin a été pensée comme un tableau contemplatif. L'épaisseur du mur est habillée d'un bandeau en chêne invitant à s'asseoir et regarder le paysage.



Un tableau sur le jardin
La grande ouverture sur le jardin a été pensé comme un tableau comtemplatif. L'épaisseur du mur est habillée d'un bandeau en chêne invitant à s'asseoir et regarder le paysage.




Le vide sur séjour se devine dans ces volumes, et l'ouverture de l'ancien mur de façade en pierre est bien visible. Le nouvel intérieur fait la part belle aux matériaux naturels : bois, métal et travertin s'associent pour une ambiance simple et authentique, en harmonie avec le caractère de la bâtisse.
Des ouvertures stratégiques pour la lumière
L'imposte fixe placé en hauteur, sur la façade Est, permet de faire rentrer la lumière du matin au centre de la pièce sans créer de vue peu esthétique. Sur la façade Ouest, en face, le même lui répond et un deuxième est placé juste en dessous pour offrir toujours plus de lumière et d'ouverture vers le jardin.


Un escalier réinventé et intégré à la cuisine
L'escalier a fait l'objet d'une étude toute particulière. Celui existant, droit, était trop raide, mais en placer un autre différent était assez complexe à cause de la présence d'une poutre à l'entrée de la trémie, qui bloquait la hauteur sous passage disponible et contraignait ainsi sa disposition.
Par ailleurs, la grande fenêtre sur le mur de façade Est limitait beaucoup l'aménagement de la cuisine sur ce linéaire, alors que le mur sur lequel la cuisine existante se déroulait – l'ancien mur de façade – a été supprimé. L'îlot seul ne suffisant pas à équiper la cuisine, la meilleure solution était de "coffrer" le nouvel escalier quart tournant, en plaçant des colonnes de rangements devant et sur le côté.
Viennent ainsi se placer le frigo, le congélateur et une grande quantité de rangements complémentaires, le bloc étant ouvert de niches par endroit pour le rendre plus décoratif et fonctionnel. Cette solution ingénieuse résout simultanément plusieurs problématiques : l'escalier devient plus confortable, la cuisine gagne en rangements, et l'ensemble s'intègre harmonieusement dans le nouvel espace.




L'étage




Le résultat : une maison qui dialogue avec son jardin
Cette extension de maison en pierre démontre comment il est possible d'agrandir significativement une bâtisse traditionnelle tout en respectant son caractère. Le choix de conserver le revêtement en pierre et de poursuivre la pente du toit crée une continuité architecturale qui fait croire que l'extension a toujours existé.
À l'intérieur, la transformation est spectaculaire : là où régnaient pénombre et cloisonnement se déploie désormais une grande pièce de vie ouverte qui dialogue avec le jardin. Le vide sur séjour et les ouvertures stratégiques créent des jeux de lumière qui animent l'espace tout au long de la journée.
Cette rénovation avec extension illustre comment l'architecture d'intérieur peut réconcilier patrimoine et modernité, authenticité et confort. La maison s'ouvre désormais généreusement sur son environnement, tout en conservant l'âme et le charme de la bâtisse en pierre qui fait son identité depuis des générations.



